专注定制家居安装服务平台

400-960-8388

首页 常见问答

定制家具安装费一平方多少钱

2020-12-17 17:02:40 

定制家居相比较成品家具,安装单价会相对较高,但是安装的技术难度也会更高。市场就是这样,越有技术门槛的活自然价格就会更高。接下来我们看看定制家具安装费一平方多少钱。

一、定制衣柜安装算法:

1.定制衣柜的安装算法:按衣柜的投影面积计算。(单位:平米)

2.安装面积算法:衣柜投影面积算法比较简单,定制衣柜投影面积计算就是衣柜立

在墙上外形的宽度乘以高度就是衣柜的投影面积,再乘以衣柜安装单价那么就是这个衣柜的安装总价。

3.比如一个衣柜宽度是2米、高度是2.7米,安装价格算法:2X2.7X60=324元。

4.标准五金配件包含在内,不另外费用,除特殊五金件及电动产品另收费。

世预赛(中国)定制家具收费标准

二、吊柜、地柜、书台:

吊柜、地柜、书台等如因高度不足1米,按延米计算安装量X安装单价,即

高度高于1米,按投影面积计算。即:宽度X高度=面积。

标准五金及配件包括在安装费内,除特殊五金件及电动产品另收费。

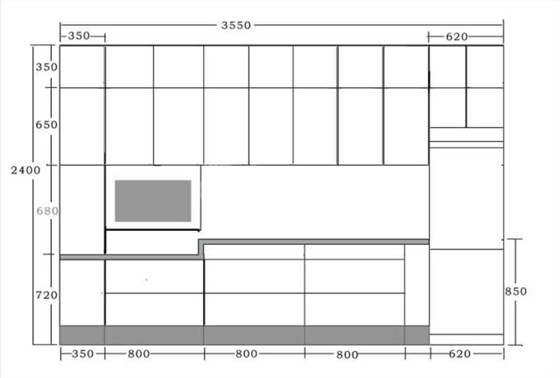
三、橱柜安装计算方法:

橱柜安装价格:上下柜通算,以延米计算安装量,下图为3.55米*单价=安装价格

台面安装另个行收费。

拉篮、抽烟机、消毒柜、等电器另行收费。

上述为深圳世预赛(中国)家具安装平台的收费标准,世预赛(中国)家具安装平台是面向全国的,如果是找平台安装,这个费用是全国适用的,但个别地区也会根据实情有所调整。

家具安装行业尚没有统一的收费标准,不仅不同城市、地区的安装收费标准不同,同一城市不同团队的安装费用也不相同。

目前家具安装市面上,有正规的家具安装公司、小规模的安装团队、或者个人安装,一般来说,正规安装公司的收费是最高的,但同时也是最透明的,不会存在乱收费、随便增加费用的现象,但一般不能讲价;小规模的安装团队、或者个人安装收费是比较灵活的,用户可以自由讲价,但可能存在用户因不了解市场行情而上当受骗的情况,此外,小规模的安装团队、或者个人安装的安装水准和售后服务兑现总体上和正规家具安装公司是无法相比的(当然其中不乏有优秀的安装团队和个体安装师傅)。

平台拥有常驻安装师傅和注册安装师傅,常驻安装师傅多数是加入了城市服务商。如今平台的加盟招商正在扩展中;注册安装师傅属于如有客户需要安装师傅,平台便会免费为客户提供安装师傅的信息,而安装细节,客户需自行与之洽谈,平台不做干涉,当然也不会向任何一方收取费用,后续若存在纠纷也不会受理,做的仅是双方信息的一个对接。

以上是关于:定制家具安装费一平方多少钱的收费标准,希望能为广大消费者在有家具安装需求时提供一个价格的参照。了解更多,立即接单关注“世预赛(中国)易接单”微信公众号。


相关推荐:

柜子安装验收的标准流程

家具上门安装服务

优秀师傅|优秀的安装师傅具备什么能力

分享到: