欢迎来到世预赛(中国)家具安装服务官网!
当前位置首页 » 新闻动态 » 常见问答 » 橱柜高度85是不是高了,橱柜85太高了怎么办

橱柜高度85是不是高了,橱柜85太高了怎么办

来源:世预赛(中国) 查看手机网址
扫一扫!橱柜高度85是不是高了,橱柜85太高了怎么办扫一扫!
浏览:{$Hits$} 发布日期:2021-01-27 17:47:41【 返回列表

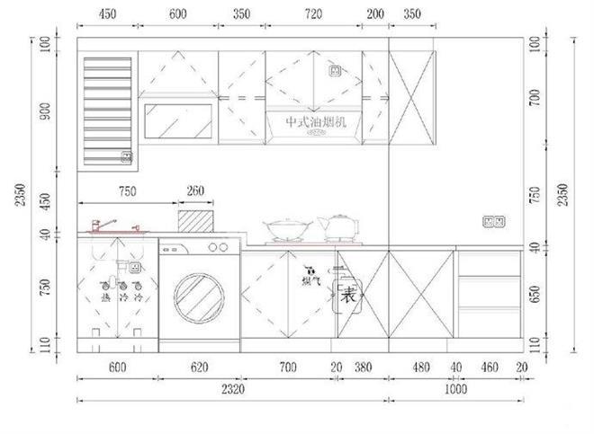
橱柜高度80还是85,决定这个的就是人的身高,一般情况一般情况下橱柜高度应该依据操作者身体高矮而定,而我国的厨柜高度常常为80-85cm,是以用者身高160-170cm为参照来设计的。

橱柜高度85是不是高了

一、橱柜高度85是不是高了

总结橱柜高度80适合身高160cm的,而橱柜高度85适合身高170cm,而一般女性身高很少超过170的,所以对于绝大部分女性来说,橱柜高度85不高。

一般可以根据个人的身高定制的,现在市面上能买到的橱柜台面高度一般就是80cm、75cm、65cm。然后国家标准的橱柜台面高度是80cm的。厨柜台面布局和工作台的高度应适合主妇的身高,橱柜台面宽度不可小于900毫米×460毫米。

橱柜台面尺寸最小的200mm宽最大不要超过600mm,地柜门高度500mm到700mm之间,这个要看地柜的高度,踢脚板的高度,还有台面下垂的高度。橱柜台面尺寸可以从300mm到1000mm宽,如果是300mm到700mm之间的小抽屉,可以用普通的三节滑道就可以了,如果是700mm到1000mm这样的大抽屉,就需要用隐形滑道或者骑马抽。

橱柜台面宽度:橱柜台面到吊柜底,高的尺寸是600毫米;低的尺寸是500毫米。厨柜布局和工作台的高度应适合主妇的身高,橱柜台面宽度不可小于900毫米×460毫米。

橱柜门板尺寸:橱柜门,最小的200mm宽最大不要超过600mm,地柜门高度500mm到700mm之间,这个要看地柜的高度,踢脚板的高度,还有台面下垂的高度。

抽屉尺寸:可以从300mm到1000mm宽,如果是300mm到700mm之间的小抽屉,可以用普通的三节滑道就可以了,如果是700mm到1000mm这样的大抽屉,就需要用隐形滑道或者骑马抽。

橱柜吊柜尺寸:吊柜门如果是左右开门,尺寸和地柜门差不多就可以了。如果是上翻门,尺寸最小500mm,最大1000mm。但是上翻门板材不好,就容易变型,建议不要做得太大,上翻门最好做700mm-850mm之间宽度,美观,不易变形。至于吊柜深度,在同一个厨房内,最好采用300mm及350mm两种尺寸(一边墙,一种深度),才能置放大碟。

橱柜高度85是不是高了

二、橱柜高度多少最舒服

想要有个舒适厨房工作,橱柜的高度是有讲究的。橱柜台面依使用功能不同而高度不同,如须运用臂力的揉面,适合较低的工作台面;而须手眼并用的切菜,则适用较高的工作台面,如果身材不高,则较适合选用比标准高度稍低的工作台面,工作台面的标准高度为90厘米,最适合人体从事较轻松的烹饪洗涤工作。一般标准为如下:身高在165cm以下,底柜高度为80cm-82cm;身高165cm以上,底柜高度为85cm。

1、地柜尺寸

(1)、若身高不到1米7的话,下柜的高度800mm即可,这样在煮饭时不会手抬得高而累。若身高在1米7以上的话,那下柜的高度应该为850mm。

(2)、它的宽度和洗菜盆大小有关,能放进最大洗菜盆就属于正常宽度。而家里的洗菜盆最大为470mmX880mm,因此,橱柜为至少要600~650mm才更美观。

2、吊柜尺寸

吊柜的高度最好为60cm左右,让使用者可以轻松拿到储物柜的物品为准。而吊柜的深度要比小柜小一点,30-37cm即可。

三、橱柜85太高了怎么办

1、橱柜一般采用的都是可调节地脚,如果偏高不是很多的话,可以通过调节恢复正常尺寸。

2、如果不能通过调节恢复正常,可以采用将所有地脚更换成更矮的地脚的方法实现正常尺寸。

3、如果以上方法都不行的话,只能通过切割柜体或者重新定制来挽回,如果是卖家的责任,可以要求他们重新定制。

【责任编辑】:世预赛(中国)版权所有:http://www.sorhairstudio.com转载请注明出处