欢迎来到世预赛(中国)家具安装服务官网!
当前位置首页 » 新闻动态 » 常见问答 » 橱柜高度一般多少

橱柜高度一般多少

来源:世预赛(中国) 查看手机网址
扫一扫!橱柜高度一般多少扫一扫!
浏览:{$Hits$} 发布日期:2021-01-29 18:00:21【 返回列表

    不管是厨房装修或是翻新,橱柜都被广泛运用。不仅因为它具有强大的收纳功能,使厨房整洁干净,而且还同时兼具装饰功能。因此很多家庭都会选择在厨房安装橱柜(包含地柜和吊柜)。可是橱柜的尺寸要如何制定才能最适合自己的家庭需求呢?不论是橱柜的地柜还是吊柜,其高度都需考虑个人的实际高度、操作习惯来确定的。如果吊柜太低,身高较高的人就很容易撞到柜子。反之,如果吊柜太高,身高较低的人拿放东西都不方便。下面关于橱柜高度一般多少,世预赛(中国)小编希望能给你一些参考建议。

橱柜高度一般多少

橱柜高度一般多少

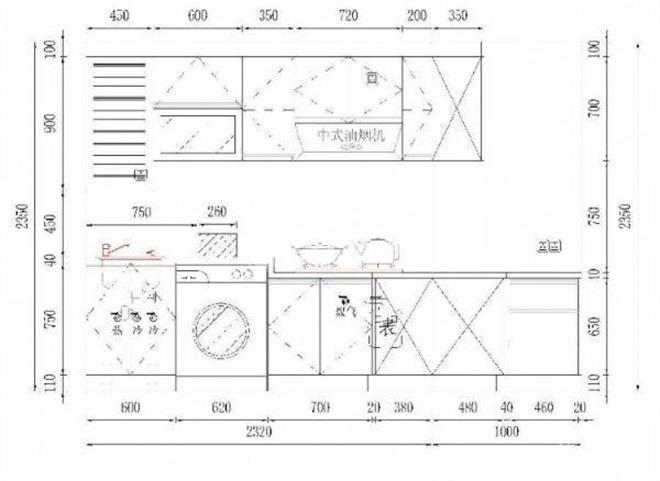
1.确定地柜的高度

由于现在的橱柜都可以定制,因此可以根据使用人的身高、使用习惯等来定做最合适的橱柜。

首先根据身高确定橱柜地柜的高低,一般地柜高度的标准为:身高在165cm以下,地柜高度为80cm左右;身高165cm以上,地柜高度为85cm左右。

划重点:这里提供一个计算方法,方便大家参考和测量。

地柜高度=调整脚+地柜柜体+台面

调整脚高度为10cm,台面高度4cm,柜体高度65cm,略高一些为71.5cm。

吊柜的高度

一般吊柜柜体为65cm/78cm/91cm,根据厨房吊顶高度确定,如果厨房吊顶高于2.3m,可以考虑91cm。中国女性身高大致在160CM左右,在实际的操作中能够到175CM左右的高度,需要能够够到吊柜中间部位。因此,地柜台面据吊柜的距离为50~60cm左右为宜。

2.确定吊柜的高度

一般吊柜柜体为65cm/78cm/91cm,根据厨房吊顶高度确定,如果厨房吊顶高于2.3m,可以考虑91cm。

整体橱柜.橱柜尺寸

中国女性身高大致在160CM左右,在实际的操作中能够到175CM左右的高度,需要能够够到吊柜中间部位。因此,地柜台面据吊柜的距离为50~60cm左右为宜。

橱柜台面尺寸

橱柜台面尺寸最小的200mm宽最大不要超过600mm,地柜门高度500mm到700mm之间,这个要看地柜的高度,踢脚板的高度,还有台面下垂的高度。橱柜台面尺寸可以从300mm到1000mm宽,如果是300mm到700mm之间的小抽屉,可以用普通的三节滑道就可以了,如果是700mm到1000mm这样的大抽屉,就需要用隐形滑道或者骑马抽。

橱柜台面高度

我们每个人的身高和习惯是不一样的,所谓不想轻信别人说的所谓橱柜台面高度标准。橱柜的标准是一定的,但我们的要求不一样,盲目的按照标准橱柜台面高度来安装,最后肯定会有不适宜的地方。为了确保我们的台面适宜自己使用,现在市面上能买到的橱柜台面高度一般就是80cm、75cm、65cm。然后国家标准的橱柜台面高度是80cm的。

橱柜台面宽度

橱柜台面的宽度直接影响到了主妇们作业时的舒适度,所以在设计橱柜的时候应该了解一下橱柜台面宽度标准。厨柜台面布局和工作台的高度应适合主妇的身高,橱柜台面宽度不可小于900毫米×460毫米。

3.确定橱柜的深度

橱柜的地柜和吊柜的深度会有一定的差距。橱柜地柜深度(含台面)一般在60cm左右,地柜深度为56cm,吊柜深度为32cm。

橱柜高度一般多少2

4.整体橱柜尺寸测量

在设计以前,要对厨房进行测量,才可以确定橱柜尺寸能被允许的大致尺寸范围。

在测量时,应该注意下面几个问题:

①橱柜的长度要来回多测几次,以免出现了较大的误差。

②测量时要注意厨房里预留的插座位置,还要了解清楚地砖的高度和窗台的高度、进出水管道的位置和燃气管道怎么设置,这样有利于橱柜的整体设计和结构安排。

③在靠近门的地方要预留一定的空间,如果将橱柜尺寸设计的和厨房空间大小完全贴合,那么就会在橱柜安装以后影响厨房门的使用。

④厨房地砖和墙砖贴好以后,要进行复测,再次确认橱柜设计的尺寸范围。

为了能保证后期使用方便的最有效的方法就是,让家庭中主要负责家务的人在橱柜安装的时候,现场尝试操作一下,看是否合适。

【责任编辑】:世预赛(中国)版权所有:http://www.sorhairstudio.com转载请注明出处